CAO ỐC PTY BUILDING
37 Nguyễn Thi, Quận 5
CÁC CHI PHÍ KHÁC
Phí quản lý:
2 USD/m2Gửi xe máy:
150.000 vnđ/xe/thángGửi ô-tô:
1.000.000vnđ/xe/thángPhí ngoài giờ:
Thỏa thuậnTiền điện:
4.600 vnđ/kwhTiền nước:
Miễn PhíĐiện máy lạnh:
Tính theo đồng hồ điện tiêu thụĐặt cọc & thanh toán:
2 Tháng - 3 ThángCAO ỐC PTY BUILDING – VĂN PHÒNG CHO THUÊ QUẬN 5
GIỚI THIỆU
Văn phòng cho thuê Quận 5 – CAO ỐC PTY BUILDING tọa lạc trên đường Nguyễn Thi gần những tuyến đường lớn huyết mạch của trung tâm thành phố là Võ Văn Kiệt, Trịnh Hoài Đức, cách vòng xoay Hải Thượng Lãng Ông 100m. Gần khu vực dân cư sầm uất, gần các trung tâm thương mại, thuận lợi cho việc giao thông qua các quận như: Quận 6, Quận 1, Quận 8 và các quận phụ cận khác. Bên cạnh đó với vị trí thuận tiện như vậy, tòa nhà còn nằm gần những ngân hàng, nhà hàng, khách sạn và tập trung nhiều công ty lớn trong và ngoài nước.
Tòa nhà văn phòng PTY BUILDING được xây dựng theo cấp độ chuẩn Tòa nhà văn phòng Hạng C.
 
KẾT CẤU VÀ HẠ TẦNG
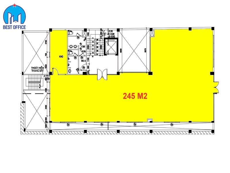
- Số tầng Tòa nhà: 1 Hầm - 6 Tầng
 - Diện tích sàn: 260m2
 - Tổng diện tích sử dụng: 1.620m2
 - Thang máy: 1 Thang máy
 - Thang bộ thoát hiểm: 02 Thang thoát hiểm
 - Hệ thống Toilet riêng biệt
 - Máy phát điện dự phòng
 - Hệ thống máy lạnh trung tâm
 - Hệ thống phòng cháy chữa cháy
 - Hệ thống đường truyền Internet cáp quang ADSL và đường truyền điện thoại.
 
TIỆN ÍCH XUNG QUANH
- Trung tâm mua sắm
 - Nhà hàng
 - Khách sạn
 - Cơm trưa văn phòng cách 20m
 - Rạp chiếu phim
 - Quán Cà phê
 - Các ngân hàng lớn: Vietinbank, Vietcombank, VIBbank, Sacombank, Techcombank …
 - Các tòa nhà văn phòng lớn Hạng A, Hạng B, Hạng C và nhiều văn phòng cho thuê quận 5 giá rẻ khác.
 
 
PHÍ DỊCH VỤ BAO GỒM
- Dịch vụ thang máy
 - Dịch vụ vệ sinh ở các khu vực công cộng và Toilet
 - Diệt côn trùng định kỳ
 - Bảo vệ an ninh tòa nhà 24/7
 - Tổng vệ sinh mặt ngoài tòa nhà định kỳ
 - Chiếu sáng khu vực công cộng và bãi đỗ xe
 - Bảo trì, bảo dưỡng các thiết bị và máy móc thuộc hệ thống chung của tòa nhà
 - Hệ thống phòng cháy chữa cháy
 - Xữ lý nước sinh hoạt
 - Hệ thống máy phát điện dự phòng
 
THÔNG TIN LIÊN HỆ
   
CÔNG TY TNHH TRUE OFFICE
Địa chỉ: 231-233 Lê Thánh Tôn, Phường Bến Thành, Quận 1, TP.HCM
Hotline: 0918.333.462 (24/7) - (Zalo)
Email: thanh.tran@bestoffice.vn
Website: Bestoffice.vn
Miễn phí :
- Tư vấn hỗ trợ khách hàng nhiệt tình, thân thiện và hiệu quả
 - Báo giá theo yêu cầu khách hàng ( Diện tích, giá thuê, vị trí… )
 - Hỗ trợ khách hàng đi xem văn phòng
 - Thương lượng với chủ đầu tư để có giá tốt nhất
 - Tư vấn hợp đồng thuê ( Những điều khoản tỏa mãn khách thuê và cao ốc )
 - Bản vẽ thiết kế nội thất văn phòng
 - Tư vấn chọn đơn vị thiết kế nội thất tốt nhất
 - Tư vấn thủ tục thuế khi chuyển đến văn phòng mới
 - Tư vấn thủ tục thành lập mới công ty, văn phòng đại diện, chi nhánh…
 - Không thu bất kỳ khoản tiền nào của khách hàng, nếu có bất kỳ khoản thu nào phát sinh từ chuyên viên hỗ trợ quý khách hàng vui lòng liên hệ về Hotline (0918.333.462) của công ty để khiếu nại.
 
ĐÁNH GIÁ VĂN PHÒNG
Văn phòng mới nhất
                                
                            
                            CAO ỐC WINGS TOWER
380 Trần Hưng Đạo, Quận 5
134m2 - 150m2 - 260m2 - 225m2 - 520m2 - 780m2 - 1040m2 - 1300m2 - 1560m2 - 134m2 - 2000m2 - 2500m2 - 3000m2 - 260m2 - 140m2
$15~36.5/m2
                                
                            
                            CAO ỐC NCT 2
133 Nguyễn Chí Thanh, Quận 5
155m2 - 120m2 - 175m2 - 350m2
$12.5~26.5/m2
                                
                            
                            CAO ỐC GOLDEN PLAZA
465 Hồng Bàng, Quận 5
343m2 - 577m2 - 69m2
$10~23/m2
                                
                            
                            CAO ỐC NC ADV
357-359 An Dương Vương, Quận 5
600m2
$21.7/m2
                                
                            
                            CAO ỐC TẢN ĐÀ COURT
86 Tản Đà, Quận 5
366m2 - 150m2
$20/m2
                                
                            
                            CAO ỐC CITYLAND Q5
240 Trần Bình Trọng, Quận 5
3000m2
$20/m2
                                
                            
                            CAO ỐC HIẾU NGHĨA BUILDING
457 An Dương Vương, Quận 5
1650m2
$19.21/m2
                                
                            
                            CAO ỐC AN THỊNH
168 Nguyễn Trãi, Quận 5
190m2
$17.96/m2
                                
                            
                            CAO ỐC VIỆT THÀNH
623-625 Nguyễn Trãi, Quận 5
110m2 - 140m2 - 250m2 - 200m2 - 100m2
$7.74~15.85/m2
                                
                            
                            CAO ỐC LOTTERY TOWER
77 Trần Nhân Tôn, Quận 5
202m2 - 324m2 - 514m2 - 245m2 - 555m2 - 277m2
$15.27/m2
                                
                            
                            CAO ỐC PHOENIX 1
12-14-16 Phước Hưng, Quận 5
100m2
$15/m2
                                
                            
                            CAO ỐC PHOENIX TOWER
16 Phước Hưng, Quận 5
65m2
$13/m2
                                
                            
                            CAO ỐC HÀ PHAN BUILDING
1119 Trần Hưng Đạo, Quận 5
86m2 - 201m2 - 115m2 - 90m2 - 315m2
$12.55/m2
                                
                            
                            CAO ỐC THANH BÌNH
911-917 Nguyễn Trãi, Quận 5
200m2 - 128m2 - 42m2 - 48m2 - 73m2 - 47m2 - 44m2 - 157m2 - 185m2 - 342m2 - 92m2 - 47m2 - 82m2 - 70m2
$10.35~12/m2
                                
                            
                            CAO ỐC THANH AN BUILDING
8 Bà Triệu, Quận 5
20m2 - 25m2 - 35m2 - 68m2 - 148m2 - 86m2 - 82m2 - 102m2 - 271m2 - 185m2 - 370m2 - 130m2 - 35m2 - 86m2 - 271m2 - 641m2 - 641m2
$11.59/m2
                                
                            
                            CAO ỐC ADELLE 1
472-474 Trần Hưng Đạo, Quận 5
178m2 - 121m2
$11~11.5/m2
                                
                            
                            CAO ỐC CHOLIMEX
1368 Võ Văn Kiệt, Quận 5
0m2
$11.2/m2
                                
                            
                            CAO ỐC SAIGON BUS
39 Hải Thượng Lãng Ông, Quận 5
225m2 - 350m2 - 150m2
$11/m2
                                
                            
                            CAO ỐC GREEN BEE
684/28A Trần Hưng Đạo, Quận 5
0m2
$10.25/m2
                                
                            
                            CAO ỐC MH
728-730 Võ Văn Kiệt, Quận 5
252m2 - 80m2 - 43m2 - 169m2 - 104m2 - 47m2 - 70m2 - 176m2 - 230m2 - 232m2 - 74m2
$10/m2
            
                
                
                
                
                
                
                
                
                    0918.333.462
                