CAO ỐC JVPE
Lô 20 Đường Số 2, Quận 12
CÁC CHI PHÍ KHÁC
Phí quản lý:
2 USD/m2Gửi xe máy:
120.000 vnđ/xe/thángGửi ô-tô:
Miễn phí 1 xePhí ngoài giờ:
Thỏa thuậnTiền điện:
Giá nhà nướcTiền nước:
Miễn phíĐiện máy lạnh:
Tính theo đồng hồ điện tiêu thụĐặt cọc & thanh toán:
3 Tháng - 1 ThángCAO ỐC JVPE – VĂN PHÒNG CHO THUÊ QUẬN 12
GIỚI THIỆU
Văn phòng cho thuê Quận 12 – CAO ỐC JVPE tọa lạc trong Khu phần mềm Quang Trung gần những tuyến đường lớn huyết mạch là Tô Ký, Quang Trung, Xa Lộ Đại Hàn. Gần khu vực dân cư sầm uất, gần các trung tâm thương mại, thuận lợi cho việc giao thông qua các quận như: Quận Gò Vấp, Quận Tân Bình, Quận Tân Phú và các quận phụ cận khác. Bên cạnh đó với vị trí thuận tiện như vậy, tòa nhà còn nằm gần những ngân hàng, nhà hàng, khách sạn và tập trung nhiều công ty lớn trong và ngoài nước.
Tòa nhà văn phòng JVPE được xây dựng theo cấp độ chuẩn Tòa nhà văn phòng Hạng C.
KẾT CẤU VÀ HẠ TẦNG
- Số tầng Tòa nhà: 1 Trệt - 5 Tầng
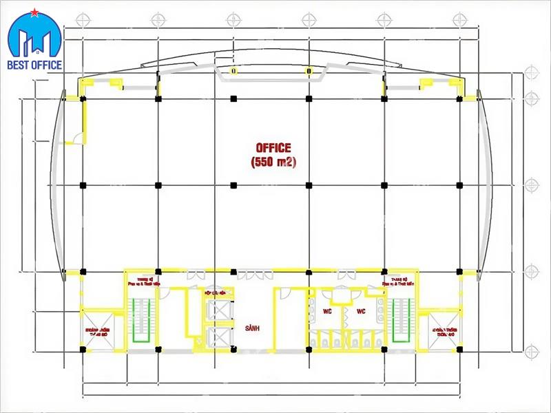
- Diện tích sàn: 600m2
- Tổng diện tích sử dụng: 3.000m2
- Thang máy: 2 Thang máy
- Thang bộ thoát hiểm: 1 Thang thoát hiểm
- Hệ thống máy lạnh cục bộ
- Hệ thống phòng cháy chữa cháy
- Hệ thống đường truyền Internet cáp quang ADSL và đường truyền điện thoại.
TIỆN ÍCH XUNG QUANH
- Trung tâm mua sắm
- Nhà hàng
- Khách sạn
- Rạp chiếu phim
- Cơm văn phòng cách 100m nằm tring khu
- Quán Cà phê
- Các ngân hàng lớn: Vietinbank, Vietcombank, VIBbank, Sacombank, Techcombank …
- Các tòa nhà văn phòng lớn Hạng A, Hạng B, Hạng C và nhiều văn phòng cho thuê Quận 12 giá rẻ khác.
PHÍ DỊCH VỤ BAO GỒM
- Dịch vụ thang máy
- Dịch vụ vệ sinh ở các khu vực công cộng và Toilet
- Diệt côn trùng định kỳ
- Bảo vệ an ninh tòa nhà 24/7
- Tổng vệ sinh mặt ngoài tòa nhà định kỳ
- Chiếu sáng khu vực công cộng và bãi đỗ xe
- Bảo trì, bảo dưỡng các thiết bị và máy móc thuộc hệ thống chung của tòa nhà
- Hệ thống phòng cháy chữa cháy
- Xữ lý nước sinh hoạt
- Hệ thống máy phát điện dự phòng
THÔNG TIN LIÊN HỆ
CÔNG TY TNHH BESTOFFICE
Địa chỉ: 270 Cộng Hòa, Phường 13, Quận Tân Bình, TP.HCM
Hotline: 1800.9279 (miễn cước)
hoặc 0918.333.462 (24/7) - (Zalo)
Email: thanh.tran@bestoffice.vn
Website: Bestoffice.vn
Những dịch vụ miễn phí tại BestOffice :
- Tư vấn hỗ trợ khách hàng nhiệt tình, thân thiện và hiệu quả
- Báo giá theo yêu cầu khách hàng ( Diện tích, giá thuê, vị trí… )
- Hỗ trợ khách hàng đi xem văn phòng
- Thương lượng với chủ đầu tư để có giá tốt nhất
- Tư vấn hợp đồng thuê ( Những điều khoản có lợi cho khách hàng )
- Bản vẽ thiết kế nội thất văn phòng
- Tư vấn chọn đơn vị thiết kế nội thất tốt nhất
- Thủ tục thuế khi chuyển đến văn phòng mới
- Thủ tục thành lập mới công ty, văn phòng đại diện, chi nhánh…
- Không thu bất kỳ khoản tiền nào của khách hàng, nếu có bất kỳ khoản thu nào phát sinh từ chuyên viên hỗ trợ quý khách hàng vui lòng liên hệ về Hotline (1800.9279) của công ty để được khiếu nại.
ĐÁNH GIÁ VĂN PHÒNG
Văn phòng mới nhất

CAO ỐC ORBITAL 2.0 TOWER
Đường số 3 Công Viên Phần Mềm Quang Trung, Quận 12
0m2
$17/m2

CAO ỐC ORBITAL
9 Đường Số 2, Quận 12
600m2 - 1300m2
$15/m2

CAO ỐC TECH VALLEY
Lô 46 Công Viên Phần Mềm Quang Trung, Quận 12
1100m2 - 2200m2 - 3300m2 - 50m2 - 100m2 - 200m2 - 400m2 - 600m2
$12~14/m2

CAO ỐC ANNA BUILDING
Công Viên Phần Mềm Quang Trung, Quận 12
98m2 - 349m2 - 153m2 - 112m2 - 367m2 - 131m2 - 308m2 - 80m2 - 196m2
$13/m2

CAO ỐC SAIGON ICT TOWER 1
Lô 46 Công Viên Phần Mềm Quang Trung, Quận 12
257m2 - 47m2 - 126m2 - 44m2 - 31m2
$10/m2

CAO ỐC MI OFFICE
174 Hà Huy Giáp, Quận 12
95m2 - 35m2
$5.56~9.7/m2

CAO ỐC JVPE
Lô 20 Đường Số 2, Quận 12
550m2
$9/m2

CAO ỐC QTSC 1
Đường Số 2, Quận 12
0m2
$9/m2

CAO ỐC GENPACIFIC
CVPM Quang Trung Đường Số 3, Quận 12
0m2
$9/m2

CAO ỐC KIM TÂM HẢI
27 Trường Chinh, Quận 12
113m2 - 117m2 - 230m2 - 46m2
$9/m2

CAO ỐC HELIOS BUILDING
Công Viên Phần Mềm Quang Trung Đường Số 3, Quận 12
81m2
$8.76/m2

CAO ỐC NC BUILDING
80 Hà Đặc, Quận 12
40m2 - 100m2 - 20m2
$4.66~8.43/m2

CAO ỐC THIÊN HÒA TRƯỜNG CHINH
2-6B Trường Chinh, Quận 12
4500m2
$8.4/m2

CAO ỐC SBI
Đường số 3 Công Viên Phần Mềm Quang Trung, Quận 12
76m2 - 125m2
$7.16/m2

CAO ỐC TC
125/7 Trường Chinh, Quận 12
24m2
$6.86/m2

CAO ỐC IN SGGP
90A Nguyễn Văn Quá, Quận 12
0m2
$6.8/m2

CAO ỐC ĐẠI PHÁT
185B Hà Huy Giáp, Quận 12
0m2
$5/m2

CAO ỐC THÁI AN
2290 Quốc Lộ 1A, Quận 12
36m2 - 80m2
$4~4/m2

CAO ỐC LTR
556 Lê Thị Riêng, Quận 12
0m2
$2.8/m2

CAO ỐC AST GROUP
1039/3E Tổ 53 Khu Phố 3, Quận 12
0m2
$2.65/m2