CAO ỐC JASMINE 1 OFFICE
200 3 Tháng 2, Quận 10
CÁC CHI PHÍ KHÁC
Phí quản lý:
3 USD/m2Gửi xe máy:
200.000 vnđ/xe/thángGửi ô-tô:
1.700.000 vnđ/xe/thángPhí ngoài giờ:
Thỏa thuậnTiền điện:
Giá nhà nướcTiền nước:
Miễn phíĐiện máy lạnh:
Tính theo đồng hồ điện tiêu thụĐặt cọc & thanh toán:
3 Tháng - 2 ThángCAO ỐC JASMINE 1 OFFICE – VĂN PHÒNG CHO THUÊ QUẬN 10
GIỚI THIỆU
Văn phòng cho thuê Quận 10 – CAO ỐC JASMINE 1 OFFICE tọa lạc trên đường 3 Tháng 2 gần những tuyến đường lớn huyết mạch của trung tâm thành phố là Cách Mạng Tháng Tám, Cao Thắng, Điện Biên Phủ. Gần khu vực dân cư sầm uất, gần các trung tâm thương mại, thuận lợi cho việc giao thông qua các quận như: Quận 1, Quận 3, Quận 5 và các quận phụ cận khác. Bên cạnh đó với vị trí thuận tiện như vậy, tòa nhà còn nằm gần những ngân hàng, nhà hàng, khách sạn và tập trung nhiều công ty lớn trong và ngoài nước.
Tòa nhà văn phòng JASMINE 1 OFFICE được xây dựng theo cấp độ chuẩn Tòa nhà văn phòng.
KẾT CẤU VÀ HẠ TẦNG
- Số tầng Tòa nhà: 4 Tầng
- Số tầng Hầm: 1 Trệt
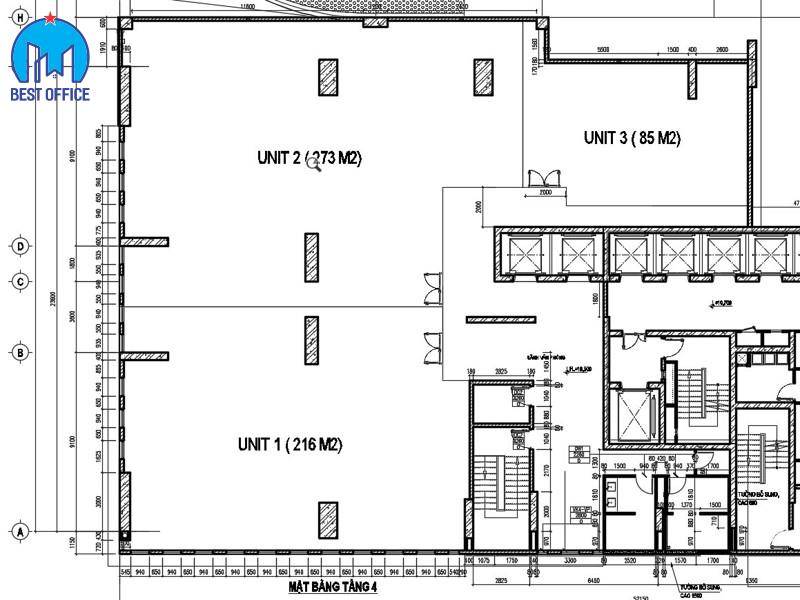
- Diện tích sàn: 620m2
- Tổng diện tích sử dụng: 2400m2
- Thang máy: 2 Thang máy
- Thang bộ thoát hiểm: 04 Thang thoát hiểm
- Hệ thống Toilet riêng biệt
- Hệ thống máy lạnh cục bộ
- Hệ thống phòng cháy chữa cháy
- Hệ thống đường truyền Internet cáp quang ADSL và đường truyền điện thoại.
TIỆN ÍCH XUNG QUANH
- Trung tâm mua sắm
- Nhà hàng
- Khách sạn
- Cơm văn phòng cách 50m
- Rạp chiếu phim
- Quán Cà phê
- Các ngân hàng lớn: Vietinbank, Vietcombank, VIBbank, Sacombank, Techcombank …
- Các tòa nhà văn phòng lớn Hạng A, Hạng B, Hạng C và nhiều văn phòng cho thuê quận 10 giá rẻ khác.
PHÍ DỊCH VỤ BAO GỒM
- Dịch vụ thang máy
- Dịch vụ vệ sinh ở các khu vực công cộng và Toilet
- Diệt côn trùng định kỳ
- Bảo vệ an ninh tòa nhà 24/7
- Tổng vệ sinh mặt ngoài tòa nhà định kỳ
- Chiếu sáng khu vực công cộng và bãi đỗ xe
- Bảo trì, bảo dưỡng các thiết bị và máy móc thuộc hệ thống chung của tòa nhà
- Hệ thống phòng cháy chữa cháy
- Xữ lý nước sinh hoạt
- Hệ thống máy phát điện dự phòng
THÔNG TIN LIÊN HỆ
CÔNG TY TNHH TRUE OFFICE
Địa chỉ: 231-233 Lê Thánh Tôn, Phường Bến Thành, Quận 1, TP.HCM
Hotline: 0918.333.462 (24/7) - (Zalo)
Email: thanh.tran@bestoffice.vn
Website: Bestoffice.vn
Miễn phí :
- Tư vấn hỗ trợ khách hàng nhiệt tình, thân thiện và hiệu quả
- Báo giá theo yêu cầu khách hàng ( Diện tích, giá thuê, vị trí… )
- Hỗ trợ khách hàng đi xem văn phòng
- Thương lượng với chủ đầu tư để có giá tốt nhất
- Tư vấn hợp đồng thuê ( Những điều khoản tỏa mãn khách thuê và cao ốc )
- Bản vẽ thiết kế nội thất văn phòng
- Tư vấn chọn đơn vị thiết kế nội thất tốt nhất
- Tư vấn thủ tục thuế khi chuyển đến văn phòng mới
- Tư vấn thủ tục thành lập mới công ty, văn phòng đại diện, chi nhánh…
- Không thu bất kỳ khoản tiền nào của khách hàng, nếu có bất kỳ khoản thu nào phát sinh từ chuyên viên hỗ trợ quý khách hàng vui lòng liên hệ về Hotline (0918.333.462) của công ty để khiếu nại.
ĐÁNH GIÁ VĂN PHÒNG
Văn phòng mới nhất

CAO ỐC DASHAUS CMT8
277B Cách Mạng Tháng 8, Quận 10
500m2 - 1100m2 - 800m2 - 2200m2
$23~37/m2

CAO ỐC VIETTEL TOWER
285 Cách Mạng Tháng 8, Quận 10
356m2 - 327m2 - 554m2 - 931m2 - 360m2 - 337m2 - 197m2 - 554m2 - 327m2 - 213m2 - 230m2 - 337m2 - 200m2 - 361m2 - 554m2
$27.69~30/m2

CAO ỐC JASMINE 1 OFFICE
200 3 Tháng 2, Quận 10
0m2
$25/m2

CAO ỐC THE CEO OFFICE
18 đường Số 5 3 Tháng 2, Quận 10
0m2
$23.57/m2

CAO ỐC PLS CMT8
283/1-7 Cách Mạng Tháng 8, Quận 10
0m2
$19/m2

CAO ỐC THIÊN HÒA
277 Cách Mạng Tháng 8, Quận 10
0m2
$18/m2

CAO ỐC NGUYỄN HƯNG BUILDING
D8 Thất Sơn, Quận 10
0m2
$17/m2

CAO ỐC MH INVESTMENT
476-478 Sư Vạn Hạnh, Quận 10
0m2
$16/m2

CAO ỐC CHARMINGTON OFFICETEL
181 Cao Thắng, Quận 10
200m2 - 35m2 - 40m2 - 45m2 - 80m2 - 200m2
$10.58~15.77/m2

CAO ỐC A-CONNECTION 1
77 -79 -81 Đào Duy Từ, Quận 10
0m2
$15.75/m2

CAO ỐC SAMCO BUILDING
444-448 Nguyễn Chí Thanh, Quận 10
0m2
$15.6/m2

CAO ỐC THIÊN NAM NGT
111-121 Ngô Gia Tự, Quận 10
250m2 - 125m2 - 121m2 - 375m2
$15/m2

CAO ỐC GIC THT
327-329 Tô Hiến Thành, Quận 10
45m2 - 12m2 - 135m2
$15/m2

CAO ỐC BLUE DIAMOND
Y1-Y2 Hồng Lĩnh, Quận 10
90m2 - 45m2 - 25m2 - 130m2 - 200m2
$9.8~14.38/m2

CAO ỐC JD ASIA OFFICE
459 Sư Vạn Hạnh, Quận 10
50m2 - 100m2 - 25m2
$14/m2

CAO ỐC RIVERA PARK
28 ( hẻm 7/28 Thành Thái) Cư xá Đồng Tiến, Quận 10
88m2
$14/m2

CAO ỐC GIA PHÚ BUILDING
854 Sư Vạn Hạnh, Quận 10
55m2 - 65m2
$13.5/m2

CAO ỐC TF BUILDING
408 Điện Biên Phủ, Quận 10
68m2 - 68m2
$13.36/m2

CAO ỐC THÀNH THÁI 2
43/4 Thành Thái, Quận 10
0m2
$13/m2

CAO ỐC VẠN TƯỜNG
407 Tô Hiến Thành, Quận 10
200m2 - 115m2
$13/m2