CAO ỐC SABAY CH2
38 Cộng Hòa, Quận Tân Bình
CÁC CHI PHÍ KHÁC
Phí quản lý:
3 USD/m2Gửi xe máy:
200.000vnđ/xe/thángGửi ô-tô:
Bãi xung quanhPhí ngoài giờ:
Thỏa thuậnTiền điện:
4.500 vnđ/kwhTiền nước:
Miễn phíĐiện máy lạnh:
Tính theo đồng hồ điện tiêu thụĐặt cọc & thanh toán:
2 Tháng - 2 ThángCAO ỐC SABAY CH2 – VĂN PHÒNG CHO THUÊ QUẬN TÂN BÌNH
GIỚI THIỆU
Văn phòng cho thuê Quận Tân Bình – CAO ỐC SABAY CH2 tọa lạc trên đường Cộng Hoà gần những tuyến đường lớn huyết mạch của trung tâm thành phố là Hoàng Văn Thụ, Trường Chinh, Trường Sơn. Gần khu vực dân cư sầm uất, gần các trung tâm thương mại, thuận lợi cho việc giao thông qua các quận như: Quận Phú Nhuận, Quận Tân Phú, Quận Bình Thạnh và các quận phụ cận khác. Bên cạnh đó với vị trí thuận tiện như vậy, tòa nhà còn nằm gần những ngân hàng, nhà hàng, khách sạn và tập trung nhiều công ty lớn trong và ngoài nước.
Tòa nhà văn phòng SABAY CH2 được xây dựng theo cấp độ chuẩn Tòa nhà văn phòng. Tòa nhà được CÔNG TY CỔ PHẦN ĐẦU TƯ SABAY HOME đầu tư xây dựng.

KẾT CẤU VÀ HẠ TẦNG
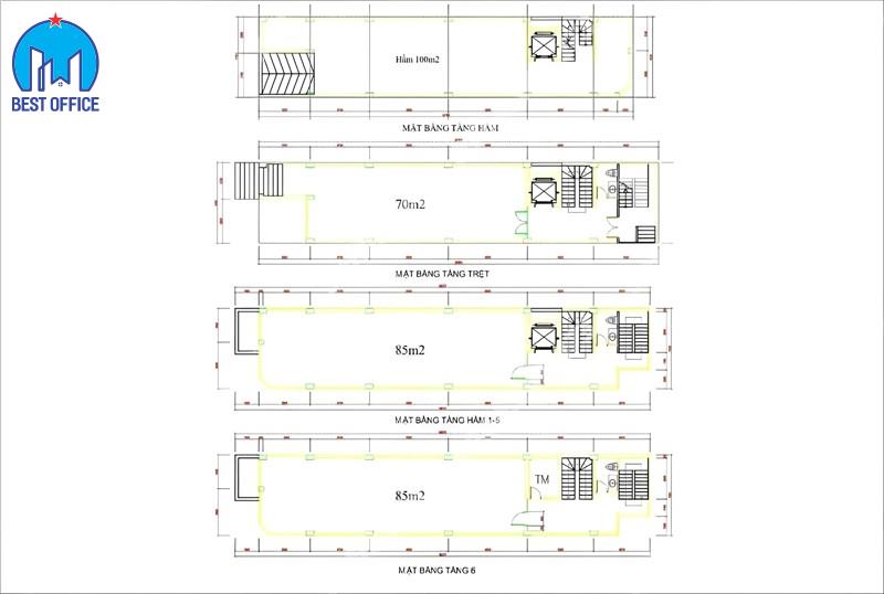
- Số tầng Tòa nhà: 7 Tầng
- Số tầng Hầm: 1 Hầm
- Diện tích sàn: 85m2
- Tổng diện tích sử dụng: 1.000m2
- Thang máy: 1 Thang máy
- Thang bộ thoát hiểm: 1 Thang thoát hiểm
- Hệ thống Toilet riêng biệt
- Hệ thống máy lạnh cục bộ
- Hệ thống phòng cháy chữa cháy
- Hệ thống đường truyền Internet cáp quang ADSL và đường truyền điện thoại
TIỆN ÍCH XUNG QUANH
- Trung tâm mua sắm
- Nhà hàng
- Khách sạn
- Cơm văn phòng cách 50m
- Rạp chiếu phim
- Quán Cà phê
- Các ngân hàng lớn: Vietinbank, Vietcombank, VIBbank, Sacombank, Techcombank …
- Các tòa nhà văn phòng lớn Hạng A, Hạng B, Hạng C và nhiều văn phòng cho thuê quận Tân Bình giá rẻ khác.

PHÍ DỊCH VỤ BAO GỒM
- Dịch vụ thang máy
- Dịch vụ vệ sinh ở các khu vực công cộng và Toilet
- Diệt côn trùng định kỳ
- Bảo vệ an ninh tòa nhà 24/7
- Tổng vệ sinh mặt ngoài tòa nhà định kỳ
- Chiếu sáng khu vực công cộng và bãi đỗ xe
- Bảo trì, bảo dưỡng các thiết bị và máy móc thuộc hệ thống chung của tòa nhà
- Hệ thống phòng cháy chữa cháy
- Xữ lý nước sinh hoạt
- Hệ thống máy phát điện dự phòng
THÔNG TIN LIÊN HỆ
CÔNG TY TNHH TRUE OFFICE
Địa chỉ: 231-233 Lê Thánh Tôn, Phường Bến Thành, Quận 1, TP.HCM
Hotline: 0918.333.462 (24/7) - (Zalo)
Email: thanh.tran@bestoffice.vn
Website: Bestoffice.vn
Miễn phí :
- Tư vấn hỗ trợ khách hàng nhiệt tình, thân thiện và hiệu quả
- Báo giá theo yêu cầu khách hàng ( Diện tích, giá thuê, vị trí… )
- Hỗ trợ khách hàng đi xem văn phòng
- Thương lượng với chủ đầu tư để có giá tốt nhất
- Tư vấn hợp đồng thuê ( Những điều khoản tỏa mãn khách thuê và cao ốc )
- Bản vẽ thiết kế nội thất văn phòng
- Tư vấn chọn đơn vị thiết kế nội thất tốt nhất
- Tư vấn thủ tục thuế khi chuyển đến văn phòng mới
- Tư vấn thủ tục thành lập mới công ty, văn phòng đại diện, chi nhánh…
- Không thu bất kỳ khoản tiền nào của khách hàng, nếu có bất kỳ khoản thu nào phát sinh từ chuyên viên hỗ trợ quý khách hàng vui lòng liên hệ về Hotline (0918.333.462) của công ty để khiếu nại.
ĐÁNH GIÁ VĂN PHÒNG
Văn phòng mới nhất
CAO ỐC ATTECH BUILDING
58 Trường Sơn, Quận Tân Bình
98m2 - 246m2 - 247m2 - 158m2 - 163m2 - 494m2
$17~40/m2
CAO ỐC WONDERSEA
16 Phan Đình Giót, Quận Tân Bình
282m2 - 140m2 - 282m2 - 420m2 - 564m2
$36/m2
CAO ỐC TTC BUILDING
253 Hoàng Văn Thụ, Quận Tân Bình
198m2 - 209m2
$18~35/m2
CAO ỐC MỘC GIA YÊN THẾ
92 Yên Thế, Quận Tân Bình
12m2
$31.59/m2
CAO ỐC ETOWN 6
364 Cộng Hòa, Quận Tân Bình
300m2 - 400m2 - 700m2 - 1000m2 - 1500m2 - 2000m2 - 5000m2 - 10000m2 - 15000m2 - 20000m2 - 30000m2 - 36000m2 - 1129m2 - 225m2 - 3000m2
$25~29/m2
CAO ÔC VNO 105 CH
105 Cộng Hòa, Quận Tân Bình
150m2 - 150m2 - 300m2 - 450m2 - 600m2 - 750m2 - 50m2
$14~25/m2
CAO ỐC UNITY BUILDING
326 Lý Thường Kiệt, Quận Tân Bình
137m2 - 110m2 - 168m2 - 60m2 - 168m2 - 33m2
$10~23/m2
CAO ỐC REPUBLIC PLAZA
18E Cộng Hòa, Quận Tân Bình
1666m2 - 204m2 - 1870m2 - 100m2
$22~23/m2
CAO ỐC PARK IX
8 Phan Đình Giót, Quận Tân Bình
65m2 - 130m2 - 635m2 - 100m2 - 185m2 - 1270m2 - 820m2
$22/m2
CAO ỐC ĐẠI AN TRƯỜNG SƠN
31 Trường Sơn, Quận Tân Bình
155m2 - 155m2
$12~22/m2
CAO ỐC TNT 4
44 - 46 Thân Nhân Trung, Quận Tân Bình
145m2 - 107m2 - 61m2
$6.68~21.28/m2
CAO ỐC MAXIC
3 Trà Khúc, Quận Tân Bình
0m2
$21.14/m2
CAO ỐC ETOWN
364 Cộng Hòa, Quận Tân Bình
100m2 - 200m2 - 300m2 - 400m2 - 500m2 - 600m2 - 700m2 - 800m2
$21/m2
CAO ỐC NC TS
28 Trường Sơn, Quận Tân Bình
240m2 - 160m2 - 170m2 - 60m2 - 410m2 - 240m2 - 70m2
$12~21/m2
CAO ỐC PHAN KHANG
431 Hoàng Văn Thụ, Quận Tân Bình
0m2 - 0m2
$20/m2
CAO ỐC EHL SÀI GÒN
66 Phổ Quang, Quận Tân Bình
0m2
$20/m2
Cao ốc NTB 1
363 Nguyễn Thái Bình, Quận Tân Bình
0m2
$19.4/m2
CAO ỐC THE SIX 8
24-26 Phan Đình Giót, Quận Tân Bình
0m2
$19/m2
CAO ỐC NC LAHERA
417 Trường Chinh, Quận Tân Bình
890m2
$18.5/m2
CAO ỐC SAIGON AIRPORT
1 Bạch Đằng, Quận Tân Bình
631m2 - 748m2 - 367m2 - 710m2 - 145m2 - 187m2 - 129m2 - 1105m2 - 98m2 - 114m2 - 355m2 - 323m2
$13~18/m2
0918.333.462
