CAO ỐC IMV CENTER
87 Hoàng Văn Thái, Quận 7
CÁC CHI PHÍ KHÁC
Phí quản lý:
4 USD/m2Gửi xe máy:
Gửi bãi sau tòa nhà 5.000 vnđ/ngàyGửi ô-tô:
1.848.000 vnđ/xe/thángPhí ngoài giờ:
Thỏa thuậnTiền điện:
4.500vnđ/kwhTiền nước:
Miễn PhíĐiện máy lạnh:
Đã bao gồm trong phí quản lýĐặt cọc & thanh toán:
3 Tháng - 3 ThángCAO ỐC IMV CENTER – VĂN PHÒNG CHO THUÊ QUẬN 7
GIỚI THIỆU
Văn phòng cho thuê Quận 7 – CAO ỐC IMV CENTER tọa lạc trên đường Hoàng Văn Thái gần những tuyến đường lớn huyết mạch của trung tâm thành phố là Nguyễn Văn Linh, Nguyễn Lương Bằng, Nguyễn Khắc Viện. Gần khu vực dân cư sầm uất, gần các trung tâm thương mại, thuận lợi cho việc giao thông qua các quận như: Quận 4, Quận 2, Quận 8 và các quận phụ cận khác. Bên cạnh đó với vị trí thuận tiện như vậy, tòa nhà còn nằm gần những ngân hàng, nhà hàng, khách sạn và tập trung nhiều công ty lớn trong và ngoài nước.
Tòa nhà văn phòng IMV CENTER được xây dựng theo cấp độ chuẩn Tòa nhà văn phòng Hạng B. Tòa nhà được Tập đoàn bất động sản Việt Nam là CÔNG TY CỔ PHẦN QUỐC TẾ MINH VIỆT đầu tư xây dựng.
 
KẾT CẤU VÀ HẠ TẦNG
- Số tầng Tòa nhà: 11 Tầng
- Số tầng Hầm: 2 Hầm
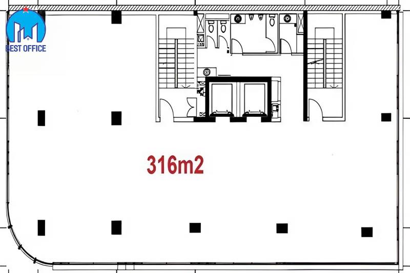
- Diện tích sàn: 316m2
- Tổng diện tích sử dụng: 3.500m2
- Thang máy: 3 Thang máy
- Thang bộ thoát hiểm: 02 Thang thoát hiểm
- Hệ thống Toilet riêng biệt
- Hệ thống phòng cháy chữa cháy
- Hệ thống đường truyền Internet cáp quang ADSL và đường truyền điện thoại.
TIỆN ÍCH XUNG QUANH
- Trung tâm mua sắm
- Nhà hàng
- Khách sạn
- Cơm văn phòng cách 50m
- Rạp chiếu phim
- Quán Cà phê
- Các ngân hàng lớn: Vietinbank, Vietcombank, VIBbank, Sacombank, Techcombank …
- Các tòa nhà văn phòng lớn Hạng A, Hạng B, Hạng C và nhiều văn phòng cho thuê quận 7 giá rẻ khác.
 
- Dịch vụ thang máy
- Điện máy lạnh giờ hành chính
- Dịch vụ vệ sinh ở các khu vực công cộng và Toilet
- Diệt côn trùng định kỳ
- Bảo vệ an ninh tòa nhà 24/7
- Tổng vệ sinh mặt ngoài tòa nhà định kỳ
- Chiếu sáng khu vực công cộng và bãi đỗ xe
- Bảo trì, bảo dưỡng các thiết bị và máy móc thuộc hệ thống chung của tòa nhà
- Hệ thống phòng cháy chữa cháy
- Xữ lý nước sinh hoạt
- Hệ thống máy phát điện dự phòng
THÔNG TIN LIÊN HỆ
   
CÔNG TY TNHH TRUE OFFICE
Địa chỉ: 231-233 Lê Thánh Tôn, Phường Bến Thành, Quận 1, TP.HCM
Hotline: 0918.333.462 (24/7) - (Zalo)
Email: thanh.tran@bestoffice.vn
Website: Bestoffice.vn
Miễn phí :
- Tư vấn hỗ trợ khách hàng nhiệt tình, thân thiện và hiệu quả
- Báo giá theo yêu cầu khách hàng ( Diện tích, giá thuê, vị trí… )
- Hỗ trợ khách hàng đi xem văn phòng
- Thương lượng với chủ đầu tư để có giá tốt nhất
- Tư vấn hợp đồng thuê ( Những điều khoản tỏa mãn khách thuê và cao ốc )
- Bản vẽ thiết kế nội thất văn phòng
- Tư vấn chọn đơn vị thiết kế nội thất tốt nhất
- Tư vấn thủ tục thuế khi chuyển đến văn phòng mới
- Tư vấn thủ tục thành lập mới công ty, văn phòng đại diện, chi nhánh…
- Không thu bất kỳ khoản tiền nào của khách hàng, nếu có bất kỳ khoản thu nào phát sinh từ chuyên viên hỗ trợ quý khách hàng vui lòng liên hệ về Hotline (0918.333.462) của công ty để khiếu nại.
ĐÁNH GIÁ VĂN PHÒNG
Văn phòng mới nhất
 
                                
                            
                            CAO ỐC MAPLETREE BUSINESS CENTER
1060 Nguyễn Văn Linh, Quận 7
304m2 - 388m2 - 100m2 - 200m2 - 100m2 - 200m2 - 160m2 - 100m2 - 200m2
$24~39/m2
 
                                
                            
                            CAO ỐC UOA TOWER
6 Tân Trào, Quận 7
315m2 - 318m2 - 315m2 - 591m2
$23.47~26/m2
 
                                
                            
                            CAO ỐC TINI OFFICE
1487 Nguyễn Văn Linh, Quận 7
277m2 - 120m2 - 208m2
$16~25/m2
 
                                
                            
                            CAO ỐC PARAGON
3 Nguyên Lương Bằng, Quận 7
68m2 - 93m2 - 150m2
$15.38~23/m2
 
                                
                            
                            CAO ỐC COBI TOWER
69 Hoàng Văn Thái, Quận 7
151m2 - 79m2 - 132m2 - 1100m2 - 584m2 - 346m2
$23/m2
 
                                
                            
                            CAO ỐC THE 678 TOWER
67 Hoàng Văn Thái, Quận 7
400m2 - 179m2 - 220m2 - 186m2 - 125m2 - 108m2 - 65m2
$22~22.31/m2
 
                                
                            
                            CAO ỐC HAPPY OFFICE
793/49/1 Trần Xuân Soạn, Quận 7
40m2 - 30m2 - 10m2
$13.62~21.64/m2
 
                                
                            
                            CAO ỐC THE GRACE TOWER
71 Hoàng Văn Thái, Quận 7
157m2
$21.58/m2
 
                                
                            
                            CAO ỐC IMV CENTER
87 Hoàng Văn Thái, Quận 7
316m2 - 141m2
$17~18.5/m2
 
                                
                            
                            CAO ỐC TÂN THUẬN (TTC)
1 Tân Thuận, Quận 7
354m2 - 320m2 - 674m2 - 234m2 - 227m2 - 261m2 - 952m2 - 461m2 - 454m2 - 1904m2 - 2857m2 - 3809m2 - 4762m2
$18/m2
 
                                
                            
                            CAO ỐC TRAN HAN BUILDING
96 Đường Số 85, Quận 7
0m2
$17.59/m2
 
                                
                            
                            CAO ỐC AWADA BUILDING
120-122 Đường D1, Quận 7
1600m2
$17/m2
 
                                
                            
                            CAO ỐC BEAUTIFUL SAIGON
2 Nguyễn Khắc Viện, Quận 7
38m2 - 35m2 - 84m2 - 99m2
$16.68/m2
 
                                
                            
                            CAO ỐC ĐẠI MINH
77 Hoàng Văn Thái, Quận 7
169m2
$16.68/m2
 
                                
                            
                            CAO ỐC BẢO NAM
422 Nguyễn Thị Thập, Quận 7
0m2
$16.18/m2
 
                                
                            
                            CAO ỐC PK
18 Phan Kiêm Ích, Quận 7
0m2
$15/m2
 
                                
                            
                            CAO ỐC ASSO
480C Nguyễn Thị Thập, Quận 7
1000m2
$15/m2
 
                                
                            
                            CAO ỐC SAIGON BANK
79-81-83 Hoàng Văn Thái, Quận 7
250m2
$14.58/m2
 
                                
                            
                            CAO ỐC TPI OFFICE
40-42 Hưng Gia 2, Quận 7
0m2
$13.13/m2
 
                                
                            
                            CAO ỐC GREEN COUNTRY BUILDING
01 Đường số 81, Quận 7
75m2 - 56m2 - 67m2 - 147m2
$12~13/m2
 
             
                 
                 
                 
                 
                 
                 
                 
                 
                 
                 
                 
                 
                 
                 
                 
                 
                 
                 
                 0918.333.462
                    0918.333.462
                