CAO ỐC AN AN
90 Trần Đình Xu, Quận 1
CÁC CHI PHÍ KHÁC
Phí quản lý:
2 USD/m2Gửi xe máy:
200.000 vnđ/xe/thángGửi ô-tô:
Gửi bãi xung quanhPhí ngoài giờ:
Thỏa thuậnTiền điện:
4.587 vnđ/kwhTiền nước:
Miễn PhíĐiện máy lạnh:
Tính theo đồng hồ điện tiêu thụĐặt cọc & thanh toán:
3 Tháng - 3 ThángThực tế ảo - tour 360 (dùng chuột, ngón tay click,xoay hình, chọn điểm khác trên màn hình)
CAO ỐC AN AN – VĂN PHÒNG CHO THUÊ QUẬN 1
GIỚI THIỆU
Văn phòng cho thuê Quận 1 – CAO ỐC AN AN tọa lạc trên đường Trần Đình Xu gần những tuyến đường lớn huyết mạch của trung tâm thành phố là Trần hưng Đạo. Gần khu vực dân cư sầm uất, gần các trung tâm thương mại, thuận lợi cho việc giao thông qua các quận như: Quận 3, Quận 4, Quận 5 và các quận phụ cận khác. Bên cạnh đó với vị trí thuận tiện như vậy, tòa nhà còn nằm gần những ngân hàng, nhà hàng, khách sạn và tập trung nhiều công ty lớn trong và ngoài nước.
Tòa nhà văn phòng AN AN được xây dựng theo cấp độ chuẩn Tòa nhà văn phòng Hạng C.

KẾT CẤU VÀ HẠ TẦNG
- Số tầng Tòa nhà: 7 Tầng
- Số tầng Hầm: 1 Hầm
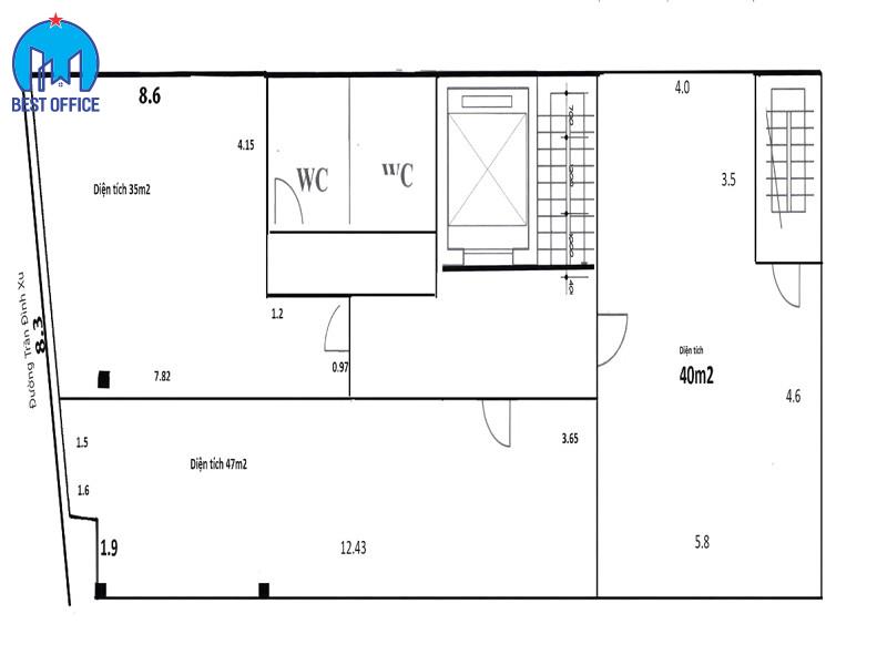
- Diện tích sàn: 130m2
- Tổng diện tích sử dụng: 1.000m2
- Thang máy: 1 Thang máy
- Thang bộ thoát hiểm: 01 Thang thoát hiểm
- Hệ thống Toilet thiết bị hiện đại tự động hóa riêng biệt
- Hệ thống máy lạnh cục bộ.
- Hệ thống phòng cháy chữa cháy
- Hệ thống đường truyền Internet cáp quang ADSL và đường truyền điện thoại.
TIỆN ÍCH XUNG QUANH
- Trung tâm mua sắm
- Nhà hàng
- Khách sạn
- Rạp chiếu phim
- Quán Cà phê
- Các ngân hàng lớn: Vietinbank, Vietcombank, VIBbank, Sacombank, Techcombank …
- Các tòa nhà văn phòng lớn Hạng A, Hạng B, Hạng C và nhiều văn phòng cho thuê quận 1 giá rẻ khác.
PHÍ DỊCH VỤ BAO GỒM
- Điện máy lạnh trong giờ hành chính
- Dịch vụ thang máy
- Dịch vụ vệ sinh ở các khu vực công cộng và Toilet
- Diệt côn trùng định kỳ
- Bảo vệ an ninh tòa nhà 24/7
- Tổng vệ sinh mặt ngoài tòa nhà định kỳ
- Chiếu sáng khu vực công cộng và bãi đỗ xe
- Bảo trì, bảo dưỡng các thiết bị và máy móc thuộc hệ thống chung của tòa nhà
- Hệ thống phòng cháy chữa cháy
- Xữ lý nước sinh hoạt
- Hệ thống máy phát điện dự phòng
THÔNG TIN LIÊN HỆ
CÔNG TY TNHH TRUE OFFICE
Địa chỉ: 231-233 Lê Thánh Tôn, Phường Bến Thành, Quận 1, TP.HCM
Hotline: 0918.333.462 (24/7) - (Zalo)
Email: thanh.tran@bestoffice.vn
Website: Bestoffice.vn
Miễn phí :
- Tư vấn hỗ trợ khách hàng nhiệt tình, thân thiện và hiệu quả
- Báo giá theo yêu cầu khách hàng ( Diện tích, giá thuê, vị trí… )
- Hỗ trợ khách hàng đi xem văn phòng
- Thương lượng với chủ đầu tư để có giá tốt nhất
- Tư vấn hợp đồng thuê ( Những điều khoản tỏa mãn khách thuê và cao ốc )
- Bản vẽ thiết kế nội thất văn phòng
- Tư vấn chọn đơn vị thiết kế nội thất tốt nhất
- Tư vấn thủ tục thuế khi chuyển đến văn phòng mới
- Tư vấn thủ tục thành lập mới công ty, văn phòng đại diện, chi nhánh…
- Không thu bất kỳ khoản tiền nào của khách hàng, nếu có bất kỳ khoản thu nào phát sinh từ chuyên viên hỗ trợ quý khách hàng vui lòng liên hệ về Hotline (0918.333.462) của công ty để khiếu nại.
ĐÁNH GIÁ VĂN PHÒNG
Văn phòng mới nhất
CAO ỐC DEUTSCHES HAUS
33 Lê Duẩn, Quận 1
215m2 - 463m2 - 417m2 - 145m2 - 140m2
$58~68/m2
CAO ỐC THE NEXUS TOWER
3A -3B Tôn Đức Thắng, Quận 1
1028m2 - 256m2 - 392m2 - 211m2
$49~68/m2
CAO ỐC SAIGON TIMES SQUARE
22 - 36 Nguyễn Huệ, Quận 1
722m2 - 208m2 - 1444m2
$65/m2
CAO ỐC EMPRESS TOWER
138 Hai Bà Trưng, Quận 1
308m2 - 536m2 - 263m2 - 1240m2 - 143m2 - 1190m2 - 180m2
$36~65/m2
CAO ỐC SC CENTRAL POINT
102 Nam Kỳ Khởi Nghĩa, Quận 1
81m2 - 154m2 - 266m2 - 138m2 - 398m2 - 260m2 - 257m2 - 138m2 - 395m2 - 259m2 - 138m2 - 397m2 - 259m2 - 137m2 - 396m2 - 256m2 - 137m2 - 393m2 - 228m2 - 137m2 - 365m2 - 284m2 - 284m2 - 261m2 - 500m2 - 600m2 - 700m2 - 800m2 - 900m2 - 1000m2 - 568m2 - 852m2
$27~65/m2
CAO ỐC PETROVIETNAM TOWER
1 - 5 Lê Duẩn, Quận 1
360m2
$60/m2
CAO ỐC MÊ LINH POINT TOWER
2 Ngô Đức Kế, Quận 1
119m2 - 138m2 - 257m2 - 193m2 - 134m2 - 941m2 - 420m2 - 521m2 - 220m2 - 968m2
$42~60/m2
CAO ỐC SOMERSET
21 Nguyễn Thị Minh Khai, Quận 1
50m2 - 58m2 - 52m2 - 312m2 - 88m2
$30.47~60/m2
CAO ỐC VIETCOMBANK TOWER
5 Công Trường Mê Linh, Quận 1
249m2 - 294m2 - 658m2 - 300m2 - 350m2 - 400m2 - 45m2 - 1200m2 - 2400m2
$50~60/m2
CAO ỐC BITEXCO FINANCIAL
34 Ngô Đức Kế, Quận 1
168m2 - 800m2 - 85m2 - 185m2 - 512m2 - 180m2 - 200m2 - 212m2 - 84m2
$48~60/m2
CAO ỐC MARINA CENTRAL TOWER
2 Tôn Đức Thắng, Quận 1
454m2 - 480m2 - 700m2 - 800m2 - 1000m2 - 1500m2 - 2000m2 - 2500m2 - 3000m2 - 5000m2 - 10000m2 - 20000m2 - 250m2 - 400m2 - 500m2 - 700m2 - 1000m2
$55~60/m2
CAO ỐC SAIGON CENTRE TOWER 1
65 Lê Lợi, Quận 1
114m2 - 133m2 - 70m2 - 370m2 - 300m2 - 76m2 - 239m2 - 396m2 - 1771m2
$47~58/m2
CAO ỐC SAIGON CENTRE TOWER 2
65 Lê Lợi, Quận 1
364m2 - 342m2 - 700m2 - 745m2 - 737m2 - 1482m2 - 313m2
$58/m2
CAO ỐC RIVERFRONT FINACIAL CENTRE
3A - 3B Tôn Đức Thắng, Quận 1
491m2 - 362m2 - 700m2 - 1000m2 - 1428m2 - 2000m2 - 2800m2
$56~58/m2
CAO ỐC FRIENDSHIP TOWER
31 Lê Duẩn, Quận 1
122m2 - 100m2 - 200m2 - 300m2 - 400m2 - 500m2 - 600m2 - 700m2 - 800m2 - 900m2 - 1000m2 - 360m2 - 88m2 - 723m2
$45~54/m2
CAO ỐC HAVANA TOWER 2
69 Huỳnh Thúc Kháng, Quận 1
320m2 - 197m2 - 120m2 - 346m2 - 335m2 - 335m2 - 686m2 - 1376m2 - 1031m2 - 1713m2 - 2041m2 - 75m2 - 175m2
$22~50/m2
CAO ỐC DATC BUILDING
154 Nam Kỳ Khởi Nghĩa, Quận 1
202m2 - 36m2 - 238m2 - 282m2 - 232m2 - 179m2 - 159m2 - 179m2
$9~50/m2
CAO ỐC VINATEX BUILDING
39 Võ Văn Kiệt, Quận 1
177m2 - 485m2 - 312m2 - 625m2 - 950m2 - 970m2 - 1455m2 - 1940m2
$27~50/m2
CAO ỐC VINCOM CENTER
72 Lê Thánh Tôn, Quận 1
1314m2 - 590m2 - 973m2 - 2524m2 - 1478m2 - 493m2 - 723m2 - 88m2 - 93m2 - 4600m2 - 1499m2 - 414m2 - 4577m2 - 1831m2
$38~45/m2
CAO ỐC OPERA VIEW
161 Đồng Khởi, Quận 1
230m2 - 460m2
$45/m2
0918.333.462
